Home
O firmie
Oferta
Partnerzy
Realizacje
Kontakt
Wybrane realizacje:
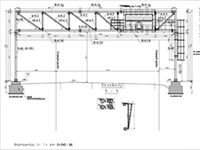
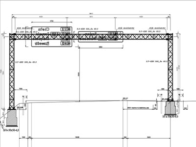
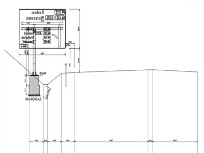
Konstrukcje drogowe
Konstrukcja drogowa
Konstrukcja drogowa
Konstrukcja drogowa
Konstrukcja drogowa
Konstrukcja drogowa
Konstrukcja drogowa
Powrót
Jesteś zainteresowany naszą ofertą?
Zadzwoń lub napisz!
606 348 648
biuro@jrs-projekty.pl
Copyright © 2016-2018 JRS Projekty Budowlane |
Polityka prywatności